Ładowarki teleskopowe
1. Urządzenie techniczne objęte dozorem technicznym może być eksploatowane na podstawie:
2. Które z wymienionych czynności nie należą do zakresu obowiązków obsługującego UTB?
3. Terminy przeglądów konserwacyjnych urządzeń technicznych:
4. Dozorem technicznym nazywamy:
5. Dozór techniczny nad urządzeniami technicznymi wykonuje:
6. Zmiana parametrów technicznych lub zmiana konstrukcji urządzenia technicznego traktowana jest jako:
7. Uzgodnioną naprawę lub modernizację urządzeń technicznych może wykonać:
8. Ustawa o dozorze technicznym określa następujące formy dozoru technicznego:
9. Decyzje zezwalająca na eksploatację urządzenia technicznego wydaje:
10. Obsługujący urządzenie techniczne może podjąć prace gdy:
11. Obsługujący urządzenie techniczne może podjąć prace gdy:
12. W przypadku nieprzestrzegania przez eksploatującego przepisów o dozorze technicznym eksploatujący:
13. W przypadku stwierdzenia zagrożenia dla życia lub zdrowia ludzkiego oraz mienia i środowiska inspektor:
14. W przypadku niebezpiecznego uszkodzenia urządzenia technicznego lub nieszczęśliwego wypadku eksploatujący:
15. Zaświadczenie kwalifikacyjne do obsługi może zostać cofnięte przez:
16. Urządzenia techniczne nieobjęte dozorem technicznym to:
17. Urządzenia techniczne objęte dozorem technicznym to:
18. Niebezpieczne uszkodzenie urządzenia technicznego to:
19. Nieszczęśliwy wypadek to:
20. Podnoszenie i przenoszenie osób przez urządzenie techniczne przeznaczone wyłącznie do transportu ładunków wymaga:
21. Odpowiedzialnym za zapewnienie właściwej obsługi i konserwacji urządzenia technicznego jest:
22. Wymagane przepisami prawa przeglądy konserwacyjne wykonuje:
23. Dziennik konserwacji urządzenia technicznego prowadzi:
24. Badania odbiorcze przeprowadza się dla urządzeń technicznych:
25. Badania okresowe przeprowadza się dla urządzeń technicznych objętych dozorem:
26. Nieobecność konserwującego na badaniu urządzenia technicznego wymaga min.:
27. Kandydat na obsługującego urządzenie techniczne musi:
28. Obsługujący urządzenie techniczne ma obowiązek przerwać prace gdy:
29. Terminy przeglądów konserwacyjnych urządzenia mogą być określone:
30. Terminy badań okresowych i doraźnych kontrolnych UTB określone są:
31. Obowiązkiem obsługującego urządzenie techniczne jest:
32. Urządzenie techniczne można eksploatować na podstawie:
33. Po wykonanych czynnościach przy urządzeniu technicznym inspektor sporządza:
34. Naprawę i modernizacje urządzenia technicznego wykonuje:
35. Bezpośrednio odpowiedzialnym za bezpieczna eksploatacje urządzenia technicznego jest:
36. Informacje dotyczące zasad bezpiecznej obsługi urządzenia są zawarte w:
37. W ramach czynności przed rozpoczęciem pracy obsługujący:
38. Zaświadczenia kwalifikacyjne do obsługi urządzeń technicznych podlegających dozorowi technicznemu wydaje:
39. Przeciążanie UTB w trakcie pracy:
40. Badania doraźne eksploatacyjne wykonuje się m.in.:
41. Obowiązki obsługującego określone są:
42. Badania okresowe urządzenia technicznego są wykonywane przez:
43. Jednostka dozoru technicznego jest:
44. Zaświadczenia kwalifikacyjne uprawniające do obsługi urządzeń technicznych ważne są na terenie:
45. Obowiązek stosowania środków ochrony indywidualnej przez operatorów urządzeń technicznych wynika z:
46. Zgodnie z rozporządzeniem Rady Ministrów w sprawie rodzajów urządzeń technicznych podlegających dozorowi technicznemu przepisom dozoru technicznego podlegają:
47. Instrukcja eksploatacji może nie zawierać:
48. Księga rewizyjna urządzenia musi zawierać:
49. Decyzja wydana przez UDT:
50. Do egzaminu sprawdzającego kwalifikacje może przystąpić osoba, która:
51. Po zakończonym badaniu technicznym z wynikiem pozytywnym inspektor UDT:
52. Zaświadczenia kwalifikacyjne:
53. Dokonujący przeróbek urządzenia technicznego bez uzgodnienia z organem właściwej jednostki dozoru technicznego:
54. Kto dopuszcza do eksploatacji urządzenie techniczne bez ważnej decyzji zezwalającej na eksploatacje:
55. Instrukcja eksploatacji to:
56. Zaświadczeń kwalifikacyjnych do obsługi nie wymaga się:
57. Osoba posiadająca zaświadczenia kwalifikacyjne może obsługiwać:
58. Obowiązkiem obsługującego urządzenie techniczne jest:
59. Zaświadczenie kwalifikacyjne do obsługi urządzeń technicznych są:
60. Obsługujący który jest świadkiem wypadku ma obowiązek:
61. Obsługującemu nie wolno:
62. Formami dozoru technicznego są:
63. Podnoszenie osób urządzeniami, które zostały zaprojektowane i wykonane wyłącznie do podnoszenia ładunków:
64. Podnoszenie ładunków za pomocą dwóch lub więcej UTB:
65. Przebywanie osób pod ładunkiem przenoszonym jest:
66. Przenoszenia ładunków nad osobami jest:
67. Zaświadczenia kwalifikacyjne do obsługi urządzeń technicznych podlegających dozorowi technicznemu wydaje:
68. Komisja egzaminacyjna powiadamia osobę zainteresowana o wyniku egzaminu:
69. Dziennik konserwacji powinien być prowadzony:
70. Instrukcja stanowiskowa:
71. Po upływie terminu ważności zaświadczenia kwalifikacyjnego do obsługi urządzenia obsługujący:
72. Przedłużenie ważności zaświadczenie kwalifikacyjnego następuje:
73. Udźwig UTB to parametr urządzenia bezpośrednio związany z:
74. Masa netto 1000 l wody wynosi ok:
75. Masa ładunku składającego się z 40 opakowań po 25 kg każdy wynosi:
76. Masa 60 kartonów po 20 kg każdy wynosi:
77. Masę podnoszonego ładunku można określić na podstawie:
78. Informacja dotycząca udźwigu urządzenia może być zawarta:
79. Prawidłowe określenie jednostki udźwigu to:
80. Które z elementów nie wchodzą w skład układu hydraulicznego wózka jezdniowego podnośnikowego?
81. Zamek hydrauliczny zapewnia ochronę przed:
82. Elementem przekształcającym ciśnienie oleju hydraulicznego w ruch mechaniczny jest:
83. Elementem wytwarzającym ciśnienie w układzie hydraulicznym wózka jezdniowego podnośnikowego jest:
84. Zawór przelewowy instalowany w układzie hydraulicznym wózków jezdniowych podnośnikowych ma za zadanie:
85. Bezpieczny sposób sprawdzenia działania zaworu przelewowego przeprowadza się:
86. Rozdzielacz hydrauliczny instalowany jest w układzie w celu:
87. Elementem wykonawczym w układzie hydraulicznym wózka jezdniowego podnośnikowego jest:
88. Elementem chroniącym układ hydrauliczny przed nadmiernym wzrostem ciśnienia jest:
89. Zawór zwrotno-dławiący montowany w układzie podnoszenia wózka jezdniowego podnośnikowego ma na celu:
90. Zawór bezpieczeństwa w układzie hydraulicznym wózka jezdniowego podnośnikowego:
91. W przypadku wzrostu ciśnienia nadmiar oleju odprowadzany jest:
92. Kryteria i warunki poprawnego wykonania prób układu hydraulicznego określa:
93. Akumulatory w elektrycznym wózku podnośnikowym:
94. Parametry podane przez producenta na tabliczce znamionowej akumulatorów to:
95. Wyłącznik bezpieczeństwa STOP jest:
96. Wyłącznik bezpieczeństwa STOP:
97. Jakiego rodzaju ogumienie stosowane jest w wózkach jezdniowych podnośnikowych:
98. Kto decyduje o rodzaju i wielkość opon zastosowanych w wózkach:
99. Graniczne zużycie opon super elastycznych (w przypadku braku innych wytycznych) to:
100. Jaki rodzaj zużycia wyklucza opony pełne z dalszej eksploatacji:
101. Świecąca się kontrolka ciśnienia oleju może świadczyć o:
102. Oznaczenie przedstawione na rysunku znajduje się na dźwigni:
103. Widząc świecąca się kontrolkę operator:
104. Dźwignia oznaczona poniższym piktogramem po wychyleniu przez operatora do przodu spowoduje:
105. Dźwignia oznaczona poniższym piktogramem po wychyleniu przez operatora spowoduje:
106. Wózki jezdniowe podnośnikowe czołowe z fotelem dla operatora muszą być wyposażone w:
107. Hamowanie jazdy wózka prowadzonego może być realizowane przez:
108. W skład układu mechanizmu podnoszenia wchodzi:
109. Wózki jezdniowe podnośnikowe czołowe z fotelem dla operatora mogą być wyposażone w maszt typu:
110. Jakie elementy bezpieczeństwa chronią operatora w przypadku utraty stateczności wózka podnośnikowego czołowego?
111. Jakie elementy maja wpływ na stateczność wózka podnośnikowego czołowego?
112. Do zasilania wózków podnośnikowych spalinowych stosowane są butle gazowe:
113. W wózkach podnośnikowych, łańcuch mechanizmu podnoszenia, jest:
114. Oznaczenie na poniższym rysunku przedstawia:
115. Oznaczenie na poniższym rysunku przedstawia:
116. Oznaczenie na poniższym rysunku przedstawia:
117. Oznaczenie na poniższym rysunku przedstawia:
118. Zapalona lub migająca lampka kontrolna:
119. Pracując wózkiem z osprzętem wymiennym operator powinien:
120. Osprzęt wymienny może być zainstalowany do wózka przez:
121. Jaki wpływ na udźwig wózka ma zamontowany dodatkowy osprzęt wymienny:
122. Po montażu osprzętu wymiennego przewidzianego przez wytwórcę wózka:
123. Dźwignia oznaczona poniższym piktogramem, po wychyleniu przez operatora powoduje:
124. Praca wózkiem z zamontowanymi przedłużkami do wideł jest dozwolona w przypadku gdy:
125. Zabezpieczenie elektryczne montowane na zakończeniu dyszla wózka jezdniowego prowadzonego to:
126. Który z elementów wyposażenia zabezpiecza przed uruchomieniem urządzenia przez osoby niepowołane?
127. Cecha 1500 x 500 znajdująca się na widle nośnej oznacza:
128. Maksymalny ładunek jaki można podnieść na parze wideł oznaczonych 2500 x 500 każda wynosi:
129. Praca wózkiem jezdniowym podnośnikowym ze zbyt niskim poziomem oleju w układzie hydraulicznym może objawiać się:
130. "Skokowy" ruch mechanizmu podnoszenia do góry może być spowodowany:
131. Nieszczelność w układzie hydraulicznym wózka jezdniowego podnośnikowego może się objawiać:
132. Gęstość oleju hydraulicznego w temperaturze ujemnej:
133. Stan poziomu oleju w układzie hydraulicznym operator sprawdza:
134. O ile wytwórca nie określi inaczej, maksymalne odchylenie od pionowego położenia masztu obciążonego ciężarem nominalnym, spowodowane wewnętrznym przeciekiem w układzie wychyłu nie powinno przekroczyć:
135. O ile wytwórca nie określi inaczej, składowa opadania mechanizmu podnoszenia wózka o udźwigu do 10 t obciążonego ciężarem nominalnym nie powinna przekroczyć:
136. O ile wytwórca nie określi inaczej, składowa opadania mechanizmu podnoszenia wózka o udźwigu powyżej 10 t obciążonego ciężarem nominalnym nie powinna przekroczyć:
137. Optymalne obciążenie potrzebne do przeprowadzenia próby szczelności wewnętrznej układu hydraulicznego wynosi:
138. O ile wytyczne producenta nie stanowią inaczej, minimalna wysokość na jaką należy podnieść ładunek podczas próby szczelności wewnętrznej układu wychyłu masztu wynosi:
139. Sprawdzenie w bezpieczny sposób działania zaworu przelewowego należy wykonać:
140. Sprawdzenie układu hydraulicznego w wózkach podnośnikowych obejmuje:
141. Sprawdzenie poprawności działania dźwigni sterowniczych należy wykonać:
142. Zakres przeprowadzonych prób wózków jezdniowych podnośnikowych wyposażonych w hydrauliczny osprzęt dodatkowy obejmuje:
143. Akumulatory kwasowe można ładować:
144. Pomieszczenie, w którym odbywa się ładowanie akumulatorów wózka:
145. Obowiązkiem operatora wózków jezdniowych podnośnikowych jest:
146. Osoba dokonująca wymiany rozładowanych akumulatorów powinna:
147. Łącznik bezpieczeństwa "STOP" służy do:
148. W przypadku stwierdzenia sytuacji niebezpiecznej operator wózka ma obowiązek:
149. Sprawdzenie poprawności działania łącznika bezpieczeństwa STOP należy wykonać:
150. Graniczne wartości zużycia ogumienia zawiera:
151. Ciśnienie w oponach powinno być dostosowane do:
152. Nierówne ciśnienie w oponach na jednej osi może spowodować:
153. Wpływ na przyspieszone zużycie opon pneumatycznych ma:
154. Nierównomierne zużycie opon pełnych znajdujących się na wspólnej osi:
155. Ocenę stanu technicznego ogumienia przeprowadza:
156. W przypadku stwierdzenia uszkodzeń mechanicznych ogumienia, mających wpływ na bezpieczna eksploatacje, operator wózka:
157. Operator po zauważeniu podczas jazdy palącej się lampki kontrolnej ciśnienia oleju silnika powinien:
158. Po zakończeniu pracy operator powinien:
159. Sprawne dźwignie sterujące:
160. Opis próby sprawdzenia poprawności działania hamulca zasadniczego opisuje:
161. Informacje dotyczące sposobu sprawdzania poprawności działania hamulca pomocniczego są zawarte w:
162. Podczas próby hamulca zasadniczego maszt powinien być w pozycji:
163. Próbę hamulca zasadniczego należy przeprowadzać:
164. Jeżeli w czasie próby hamulca pomocniczego operator uzna, ze jego działanie jest nieprawidłowe, powinien:
165. W przypadku stwierdzenia awarii układu hamulcowego, operator powinien:
166. W przypadku stwierdzenia wycieku płynu hamulcowego, operator powinien:
167. W przypadku stwierdzenia niewłaściwego działania hamulca pomocniczego, operator:
168. Hamulec zasadniczy należy sprawdzać jadąc wózkiem podnośnikowym i hamując:
169. Operator powinien przeprowadzić sprawdzenie hamulców:
170. Schodząc z fotela operatora, obsługujący wózek powinien:
171. Zakres czynności kontrolnych masztu wózka podnośnikowego obejmuje:
172. Podczas jazdy wózkiem podnośnikowym z ładunkiem na widłach należy:
173. Ładunek należy transportować:
174. Podczas zjazdu z pochyłej rampy wózkiem czołowym podnośnikowym wraz z ładunkiem, operator:
175. Podczas wjazdu na pochyła rampę wózkiem jezdniowym podnośnikowym z ładunkiem ograniczającym widoczność, operator:
176. Poruszanie się wózkiem w poprzek pochyłej rampy jest:
177. Poruszając się wózkiem z ładunkiem ograniczającym widoczność operator powinien:
178. Podczas jazdy wózkiem jezdniowym podnośnikowym z ładunkiem należy:
179. Wylot zaworu butli gazowej powinien być skierowany:
180. Szczelność instalacji gazowej sprawdza się przy pomocy:
181. Eksploatacja wózka jezdniowego w temperaturze poniżej -10°C:
182. Eksploatacja wózka jezdniowego w temperaturze powyżej 30°C:
183. W oparciu o tabele określ jakie maksymalne obciążenie może przenieść gniazdo ładunkowe regału:
184. W oparciu o tabele, określ na które najwyższe gniazdo ładunkowe podasz towar dysponując wózkiem o maksymalnej wysokości podnoszenia 2100 mm:
185. Odstawiając ładunek na regał magazynowy operator powinien znać:
186. Podczas transportu ładunków wielkogabarytowych operator powinien:
187. Na co powinien zwrócić uwagę operator podczas wymiany baterii trakcyjnych?
188. Przyczyna utraty stateczności wózka może być:
189. Dopuszczalna prędkość jazdy wózka jest określona:
190. Przed rozpoczęciem pracy wózkiem należy sprawdzić funkcjonowanie:
191. Po zamontowaniu dodatkowego osprzętu wymiennego należy:
192. Przed wjazdem wózkiem na rampę załadowcza operator powinien sprawdzić:
193. Podczas jazdy wózkiem podnośnikowym należy:
194. Gdzie znajduje się informacja dotycząca udźwigu wózka:
195. Przed rozpoczęciem pracy wózkiem należy:
196. Praca wózka z koszem do podnoszenia osób zakładanym na widły:
197. W przypadku kiedy wózek traci stateczność, operator:
198. W chwili wywracania się wózka należy:
199. Wózek może stracić stateczność na skutek:
200. Jeżeli instrukcja wózka nie stanowi inaczej, następujące w toku eksploatacji maksymalne wydłużenie łańcucha nośnego może wynosić:
201. Jeżeli instrukcja wózka nie stanowi inaczej, dopuszczalna ilość pękniętych płytek łańcucha nośnego (konstrukcji Flyera) wynosi:
202. Jeżeli instrukcja wózka nie stanowi inaczej, minimalna dopuszczalna grubość poziomej części wideł zmierzona w pobliżu ich naroża (piety) wynosi:
203. Jeżeli instrukcja wózka nie stanowi inaczej, minimalna dopuszczalna grubość poziomej części wideł zmierzona w pobliżu ich naroża (piety) wynosi:
204. Jeżeli instrukcja wózka nie stanowi inaczej, minimalna dopuszczalna grubość poziomej części wideł zmierzona w pobliżu ich naroża (piety) wynosi:
205. Jeżeli instrukcja wózka nie stanowi inaczej, minimalna dopuszczalna grubość poziomej części wideł zmierzona w pobliżu ich naroża (piety) wynosi:
206. Jeżeli instrukcja wózka nie stanowi inaczej, maksymalne dopuszczalne rozgięcie widły względem wartości oryginalnej (zwykle 90 stopni), wynosi:
207. Sprawdzenie poprawności działania układu hydraulicznego w wózkach ze zmiennym wysięgiem obejmuje min.:
208. Minimalna bezpieczna odległość pracy wózka przy wykopie uzależniona jest od:
209. Przedstawiony rysunek oznacza:
210. Urządzeniem zabezpieczającym wózek ze zmiennym wysięgiem przed wywróceniem jest:
211. Poprawnie działający ogranicznik obciążenia w wózkach ze zmiennym wysięgiem powoduje:
212. W przypadku awarii układu hydraulicznego przy podniesionej kabinie i braku możliwości awaryjnego opuszczenia kabiny operator powinien:
213. W przypadku awarii wózka, przy podniesionej kabinie operator powinien:
214. Urządzeniem zabezpieczającym operatora przed przygnieceniem lub wypadnięciem instalowanym w wózkach z operatorem podnoszonym wraz z ładunkiem może być:
215. Elementem mającym na celu zapewnienie prawidłowej pozycji obsługującego wózek z operatorem podnoszonym wraz z ładunkiem, może być:
216. Zabezpieczenia elektryczne charakterystyczne dla wózka z operatorem podnoszonym wraz z ładunkiem to:
217. W oparciu o przedstawiony diagram udźwigu i rysunek określ maksymalna bezpieczna wysokość podnoszenia ładunku pobranego od strony A:
218. W oparciu o przedstawiony diagram udźwigu i rysunek określ maksymalna bezpieczna wysokość podnoszenia ładunku pobranego od strony B:
219. W oparciu o przedstawiony diagram udźwigu i rysunek określ maksymalna bezpieczna wysokość podnoszenia ładunku pobranego od strony A:
220. W oparciu o przedstawiony diagram udźwigu i rysunek określ maksymalna bezpieczna wysokość podnoszenia ładunku pobranego od strony B:
221. W oparciu o przedstawiony diagram udźwigu i rysunek określ maksymalna bezpieczna wysokość podnoszenia ładunku pobranego od strony A:
222. W oparciu o przedstawiony diagram udźwigu i rysunek określ maksymalna bezpieczna wysokość podnoszenia ładunku pobranego od strony B:
223. W oparciu o przedstawiony diagram udźwigu i rysunek określ maksymalna bezpieczna wysokość podnoszenia ładunku pobranego od strony A:
224. W oparciu o przedstawiony diagram udźwigu i rysunek określ maksymalna bezpieczna wysokość podnoszenia ładunku pobranego od strony B:
225. W oparciu o przedstawiony diagram udźwigu określ maksymalny udźwig wózka na wysokości 6 m:
226. W oparciu o przedstawiony diagram udźwigu określ maksymalny udźwig wózka na wysokości 6,7 m:
227. W oparciu o przedstawiony diagram udźwigu określ maksymalna masę ładunku, o wymiarach podstawy 1,6 m x 1,6 m:
228. W oparciu o przedstawiony diagram udźwigu określ maksymalna masę ładunku, o wymiarach podstawy 2 m x 2 m:
229. W oparciu o przedstawiony diagram udźwigu oraz rysunek określ maksymalna bezpieczna wysokość podnoszenia ładunku pobranego z kierunku A:
230. W oparciu o przedstawiony diagram udźwigu oraz rysunek określ maksymalna masę ładunku pobranego od strony B:
231. W oparciu o przedstawiony diagram udźwigu oraz rysunek określ maksymalna masę ładunku pobranego od strony A:
232. W oparciu o przedstawiony diagram udźwigu oraz rysunek określ maksymalna masę ładunku pobranego od strony B:
233. W oparciu o przedstawiony diagram udźwigu oraz rysunek określ maksymalna masę ładunku, jaką można bezpiecznie podnieść pobierając ładunek od strony A:
234. W oparciu o przedstawiony diagram udźwigu oraz rysunek określ maksymalna masę ładunku, jaką można bezpiecznie podnieść pobierając ładunek od strony A:
235. W oparciu o przedstawiony diagram udźwigu oraz rysunek określ maksymalna masę ładunku, jaką można bezpiecznie podnieść pobierając ładunek od strony B:
236. W oparciu o przedstawiony diagram udźwigu oraz rysunek określ maksymalna bezpieczna wysokość podnoszenia, ładunku pobranego z kierunku A:
237. W oparciu o przedstawiony diagram udźwigu określ maksymalny udźwig wózka, podnoszącego ładunek na wysokość 3000 mm:
238. W oparciu o przedstawiony diagram udźwigu określ maksymalny udźwig wózka, podnoszącego ładunek na wysokość 4000 mm:
239. W oparciu o przedstawiony diagram udźwigu określ maksymalny udźwig wózka, podnoszącego ładunek na wysokość 5000 mm:
240. W oparciu o przedstawiony diagram udźwigu oraz rysunek określ maksymalna masę ładunku jaką można bezpiecznie podnieść na wysokość 4000 mm, pobierając od strony B:
241. W oparciu o przedstawiony diagram udźwigu oraz rysunek określ maksymalna masę ładunku jaką można bezpiecznie podnieść na wysokość 4000 mm, pobierając od strony A:
242. W oparciu o przedstawiony diagram udźwigu oraz rysunek wskaż, na który regał lub regały można postawić ładunek:
243. W oparciu o przedstawiony diagram udźwigu oraz rysunek wskaż, na który regał lub regały można postawić ładunek:
244. W oparciu o przedstawiony diagram udźwigu oraz rysunek wskaż, na który regał lub regały można postawić ładunek:
245. W oparciu o przedstawiony diagram udźwigu oraz rysunek określ maksymalna masę ładunku, pobranego od strony B:
246. W oparciu o przedstawiony diagram udźwigu oraz rysunek określ maksymalna masę ładunku, pobranego od strony A:
247. W oparciu o przedstawiony diagram udźwigu oraz rysunek określ maksymalna bezpieczna wysokość podnoszenia, ładunku pobranego z kierunku A:
248. W oparciu o przedstawiony diagram udźwigu oraz rysunek określ maksymalna bezpieczna wysokość podnoszenia, ładunku pobranego z kierunku B:
249. W oparciu o przedstawiony diagram udźwigu oraz rysunek określ maksymalna bezpieczna wysokość podnoszenia, ładunku pobranego z kierunku A:
250. W oparciu o przedstawiony diagram udźwigu oraz rysunek określ maksymalna bezpieczna wysokość podnoszenia, ładunku pobranego z kierunku B:
251. W oparciu o przedstawiony diagram udźwigu oraz rysunek określ maksymalna masę ładunku, pobranego od strony A:
252. W oparciu o przedstawiony diagram udźwigu oraz rysunek określ maksymalna masę ładunku, pobranego od strony B:
253. W oparciu o przedstawiony diagram udźwigu oraz rysunek określ maksymalna masę ładunku, pobranego od strony A:
254. W oparciu o przedstawiony diagram udźwigu oraz rysunek określ maksymalna masę ładunku, pobranego od strony B:
255. Na podstawie diagramu określ na jaką maksymalna wysokość można podnieść ładunek o masie 4,0 t:
256. Na podstawie diagramu określ na jaką maksymalna wysokość można podnieść ładunek o masie 3,0 t:
257. Na podstawie diagramu określ na jaką maksymalna wysokość można podnieść ładunek o masie 3t:
258. Na podstawie diagramu określ maksymalny wysięg dla ładunku 1,6 t:
259. Na podstawie diagramu określ maksymalny wysięg dla ładunku 4,0 t:
260. Na podstawie diagramu określ jaki ładunek można podać na odległość 5 m:
261. Na podstawie diagramu, parametry wózka to:
262. Na podstawie diagramu określ na jaką maksymalna wysokość można podnieść ładunek o masie 3,0 t:
263. Na podstawie diagramu określ maksymalny wysięg dla ładunku 4,0 t:
264. Na podstawie diagramu określ na jaką maksymalna wysokość można podnieść ładunek o masie 1,5 t:
265. Na podstawie diagramu określ maksymalny wysięg dla ładunku 1,5 t:
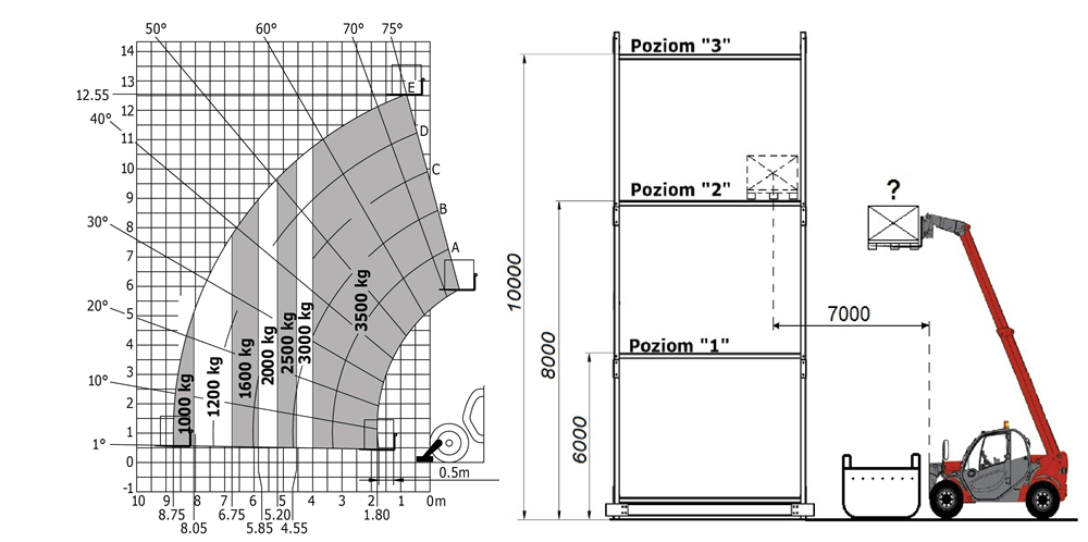
266. Zgodnie z podanym diagramem udźwigu w sytuacji jak na rysunku operator może:
267. Ile może wynosić masa podnoszonego ładunku w przypadku, gdy zgodnie z podanym diagramem udźwigu w sytuacji jak na rysunku operator ma za zadanie odłożyć ładunek na poziomie:
268. Maksymalna wysokość podnoszenia ładunku o masie 3,5 t wynosi:
269. Maksymalna wysokość podnoszenia ładunku o masie 2,5 t wynosi:
270. Zgodnie z podanym diagramem maksymalny wysięg ładunku o masie 1,2 t wynosi:
271. Ile może wynosić masa podnoszonego ładunku w przypadku, gdy zgodnie z podanym diagramem udźwigu w sytuacji jak na rysunku operator ma za zadanie odłożyć ładunek na poziomie 2”?
272. Na podstawie diagramu parametry wózka to:
273. Na podstawie diagramu określ maksymalny wysięg dla ładunku 2,0 t:
274. Na podstawie diagramu określ maksymalny wysięg dla ładunku 2,0 t:
275. Na podstawie diagramu określ maksymalny wysięg dla ładunku 2,5 t:
276. Świecąca się kontrolka ciśnienia oleju może świadczyć o:
Ładowarki teleskopowe
Otrzymałeś {{userScore}} na {{maxScore}} prawidłowych
{{title}}
{{image}}
{{content}}
